Welcome: Litong Glass
vip@litongglass.com +86 16632961602
Home      News       2025 Curtain Wall Design Competition [Pr…

News

2025 Curtain Wall Design Competition [Project Exhibition] China Construction Eighth Bureau Second Company - Anhui Provincial Science and Technology Museum Curtain Wall Deepening Design

The Anhui Science and Technology Museum project is located in the cultural venue area in the northwest corner of the intersection of Hubei Road and Taiwan Road in Binhu New Area, Hefei City, Anhui Province, adjacent to Chaohu Lake.

The project covers an area of about 50,000 square meters and an exterior curtain wall area of 29,000 square meters.

The main function of the building is a science and technology venue and youth activity center, the exterior design of the diamond shape of the science and technology museum, inspired by the dynamic operation of the universe, and the spiral curve façade of the space shows a unique architectural aesthetic, attracting people to explore the mysteries of science and technology and the universe.

Precise epidermal analysis for optimized visuals

Epidermal analysis

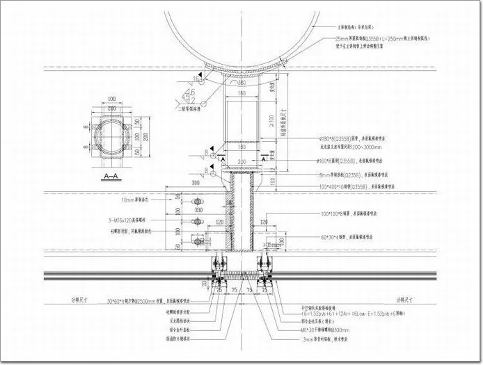
Standard practice node diagram

Three-dimensional node diagram

The curtain wall system of this project includes long-span multi-angle special-shaped curtain wall, façade glass curtain wall, façade perforated aluminum panel curtain wall, glass daylight roof, metal roof, interior façade open-frame glass curtain wall, interior façade steel plate open-frame glass curtain wall, etc. The design team conducted an in-depth analysis of the three-dimensional skin, optimized the curtain wall grid, distinguished the opening rate of the plates by color, determined the angle of yin and yang angles, and unified the size of the aluminum plate with the edge. It effectively facilitates the construction and processing, improves the overall visual effect of the façade, and makes the diamond shape more perfect.

Photo of the completion of the ridge line handover location on site

Innovate connection schemes and break through structural problems

How to connect the hoop

The exterior curtain wall presents irregular diamond folding, and the grid is complex and changeable, and it needs to be constructed on the special-shaped main steel structure. Faced with this challenge, the design team used the method of holding hoop connectors with the help of 3D scan data from the on-site steel structure. It effectively ensures that the installation size is accurate, realizes three-dimensional adjustment, meets the stress requirements of large cantilever and large span, and lays a solid foundation for the stability of the entire curtain wall structure.

Efficient skeleton assembly to ensure excellent construction quality

The south façade is hoisted in sections

Steel keel as a whole

Due to the connection between the curtain wall steel structure plate and the main steel structure of this project, the maximum size of the plate is 58*21m, and the largest plate only weighs about 75 tons of steel keel. The main steel structure has a complex shape and a large span, and conventional construction measures such as gondolas are difficult to meet the actual needs of the site. After comprehensive evaluation, the design team adopts the prefabricated construction idea to carry out the construction of the steel structure part of the façade curtain wall. During construction, a diamond plate is used as a unit to complete the welding and assembly of the steel structure keel on the ground in advance, and then the overall hoisting is carried out. This method divides the keel transfer and plate assembly into stages, which significantly improves the construction efficiency. After the overall plate is hoisted in place, only the adapter needs to be welded, which greatly reduces the amount of high-altitude welding work and effectively improves the safety and accuracy of construction.

Before installation, the design team first combined the point data exported from the BIM model to carry out pay-off measurement and installation of adapters, and at the same time, simultaneously carried out the assembly and welding of steel keel plates. When the assembly is completed, according to the difference in plate size, different tonnage truck cranes are selected and combined with the climbing vehicle for installation operation. After the plate is hoisted to the predetermined position, the electric hoist is adjusted and positioned in combination with the hoop connection to ensure the accuracy of the installation size. After the welding is completed, the steel keel is sprayed with fluorocarbon.
Characteristic material technology to create a gradient curtain wall

Colored glaze large surface effect

Local effect of perforated aluminum plate

The glass curtain wall is made of color-glazed glass, which is printed with a mesh plate and sintered at high temperature, so that the material has both decoration, sunshade and safety performance. The design team set 11 kinds of color glaze light transmittance from 23% to 100%, and cleverly designed the color glaze pattern and color to achieve the diamond gradient effect of the façade.

BIM parametric material extraction and export processing diagram

The realization of the color glaze effect is to realize the change of glass light transmittance through the change of the number of color glaze points of 40*40mm, based on the folding and curved surface modeling of the project, the material information is extracted in batches by BIM parameterization method when lifting the material, and the processing drawing is automatically generated using the program, which greatly improves the design efficiency and reduces the processing time.

BIM technology empowers efficient and accurate management
BIM visualization application

Based on the complex shape of this project, the design team uses BIM technology to realize the visual and virtualized collaborative management of the construction site. Through the docking of AR technology with the construction site, the model guides the on-site construction. Professional BIM engineers are on-site to coordinate the deepening of curved surface special-shaped links and cooperate with on-site construction. Relying on the professional deepening design software platform and BIM model, accurately calculate the adjustment value of node coordinate positioning, and generate structural installation layout drawings, zero component diagrams and report lists. Use 3D design software to simulate the assembled steel structure segmented components, compare them with the theoretical model, check the processing and assembly accuracy, and correct the deviation in time to ensure that each link meets the high precision requirements.

The deepening application and construction design of the long-span multi-angle special-shaped curtain wall of this project successfully solved the technical problems of the design and installation of similar projects, provided valuable experience for similar forms of curtain walls in the industry, and won a number of curtain wall design and construction awards in the industry.


Facebook

Email

Phone